17 Pontefract Road Ferrybridge, Knottingley, West Yorkshire, WF11 8PN

  • Conditional Online Auction Sale
  • Bedrooms: 3

GoTo Group offer for sale this three bedroom semi detached in Knottingley, WF11

Tenure

FREEHOLD

Description

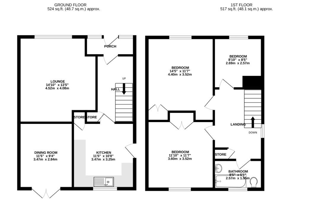
Are you looking for a spacious home that is need of a little tlc, then look no further. Offered for sale with no chain, this is one not to miss and would suit a variety of buyers. Briefly comprising; lounge, dining room, kitchen, three bedrooms, bathroom, external storage and gardens. Ideally located for local amenities and public transport links the property would make a great family home or investment. Porch - With a door to the front elevation and opening into the hallway.Hallway - Having a door to the front elevation, stairs up to the first floor and useful storage. Lounge - 14'10" x 11'7"A spacious lounge with a window to the front elevation and a radiator. Dining Room - 11'5" x 8'11"With patio doors leading out to the garden and a radiator. Kitchen - 11'9" x 10'8"Fitted with a range of matching wall and base units with complementary work surfaces over, sink and drainer, plumbing for a WM, electric oven point with extractor over, a door to the side elevation and a window to the rear. Landing - Having a window to the side elevation and stairs down to the ground floor. Bedroom One - 11'4" x 11'8"A double bedroom with with a window to the front elevation, a radiator and built in wardrobes. Bedroom Two - 11'4" x 11'10"A double bedroom with with a window to the rear elevation, a radiator and built in wardrobes. Bedroom Three - 8'10" x 8'3"Having a window to the front elevation and a radiator. Bathroom - 7'5" x 5'4" Fully tiled and comprising of a three piece suite; bath with shower over, WC, WHB and a window to the rear elevation. Garden - The property sits in gardens to both the front and rear. The front is gravelled, whilst to the rear you will find a really good sized, enclosed garden that is paved for low maintenance and leads to the brick built storage area and garage. Parking - A driveway provides parking for multiple cars. EPC Band: TBCCouncil Tax Band: ADisclaimerWhilst we make enquiries with the Seller to ensure the information provided is accurate, Yopa makes no representations or warranties of any kind with respect to the statements contained in the particulars which should not be relied upon as representations of fact. All representations contained in the particulars are based on details supplied by the Seller. Your Conveyancer is legally responsible for ensuring any purchase agreement fully protects your position. Please inform us if you become aware of any information being inaccurate.The property is PRC construction with a brick skin. Certificates are available confirming completion of the works. Money Laundering RegulationsShould a purchaser(s) have an offer accepted on a property marketed by Yopa, they will need to undertake an identification check and asked to provide information on the source and proof of funds. This is done to meet our obligation under Anti Money Laundering Regulations (AML) and is a legal requirement. We use a specialist third party service together with an in-house compliance team to verify your information. The cost of these checks is £70 +VAT per purchase, which is paid in advance, when an offer is agreed and prior to a sales memorandum being issued. This charge is non-refundable under any circumstances.

EPC Rating

current 66 / 85 potential

Opening Bid and Reserve Price

This Property is subject to an undisclosed Reserve Price which in general will not be 10% more than the Opening Bid. The Reserve Price and Opening Bid can be subject to change. The Online Auction terms and conditions apply.

Comments

This property is offered for sale via Online Auction which is a flexible and buyer friendly method of purchase. The purchaser will not be exchanging contracts on the fall of the virtual hammer, but will be given 56 working days in which to exchange and complete the transaction from the date the Draft Contract is issued by the sellers solicitor.

By giving a buyer time to exchange contracts on the property, normal residential finance can be arranged. The Buyer’s Premium secures the transaction and takes the property off the market. Fees paid to the Auctioneer reserve the property to the buyer during the Reservation Period and are paid in addition to the purchase price and are considered within calculations for Stamp Duty Land Tax. Further clarification on this must be sought from your legal representative.

The buyer will be required to give the Auctioneer authority to sign the Reservation Form on their behalf and to confirm acceptance of the Terms and Conditions prior to solicitors being instructed. Copies of the Reservation Form and all Terms and Conditions can be found in the Information Pack which can be downloaded from our website or requested from our Auctioneer.

Upon close of a successful auction, or if the vendor accepts an offer during the auction, the buyer will be required to make payment of a non-refundable Buyer's Premium of £6,600 including VAT, plus a buyer's administration charge of £372 including VAT, a total of £6,972. This secures the transaction and takes the property off the market. Any additional fees and charges over and above this will be confirmed within the terms and conditions available on the website.

The Buyer's Premium and buyer's administration charge are in addition to the final negotiated selling price.

All buyers will be required to verify their identity and provide proof of how the purchase will be funded.

Buyer's Administration Charge

If the Buyer Information Pack has been produced and provided by GOTO Group any successful purchaser will be required to pay £372 (including VAT) towards the cost of the preparation of the pack. These can then be used by your solicitor to progress the sale.

Buyer Fees

There are no other fees or charges payable to the Auctioneer however, there are other costs to consider such as:

  • You will need a Solicitor to act for you during the conveyancing and your Solicitor will advise you in relation to the associated costs. If you do not have a Solicitor, we can recommend the services of one of our Panel Solicitors who are all selected for their expertise in Auction Transactions. Please call the number below for more information.
  • Stamp Duty Land Tax (SDLT) is applicable if you buy a property or land over a certain price in England, Wales or Northern Ireland. Please click here for more information.

Energy Performance Certificate (EPCs)

An EPC is broadly like the labels provided with domestic appliances such as refrigerators and washing machines. Its purpose is to record how energy efficient a property is as a building. The certificate will provide a rating of the energy efficiency and carbon emissions of a building from A to G, where A is very efficient, and G is inefficient. The data required to allow the calculation of an EPC includes the age and construction of the building, its insulation and heating method. EPCs are produced using standard methods with standard assumptions about energy usage so that the energy efficiency of one building can easily be compared with another building of the same type. The Energy Performance of Buildings Directive (EPBD) requires that all buildings have an EPC when they are marketed for sale or for let, or when houses are newly built. EPCs are valid for 10 years, or until a newer EPC is prepared. During this period the EPC may be made available to buyers or new tenants.

Loading the bidding panel...

Office Contact

YOPA Online Auctions
01844 355022

Agreement Documents

Additional Documents

Online Auction Buying Guide

Related Documents

Share