29 Ty Brachty Terrace Crumlin, Newport, Gwent, NP11 3BU

  • Conditional Online Auction Sale
  • Bedrooms: 3

Go To Group offer for sale this three bedroom property in Newport, NP11

Tenure

LEASEHOLD

Description

YOPA is proud to present this three bedroomed property in the quaint village of Crumlin. The property boasts three good sized bedrooms along with a large kitchen/diner. Please book early to avoid disappoint in this very buoyant and busy market.

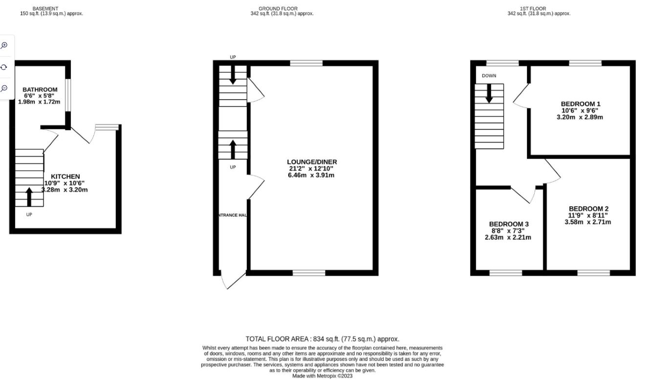
Ground floor

Living/Dining Room:
A spacious living/dining room situated on the middle floor of the property, with a uPVC double-glazed window to the front and to the rear. Quality carpet flooring throughout, radiators, power sockets and skimmed ceilings

Kitchen:
A good sized kitchen in the bottom floor of the property, with a combination of wall and base units, a UPVC window and door to the rear leading out onto the garden. Tiled floors and splashbacks, integrated oven with hood over, integrated fridge/freezer, radiator, power sockets and skimmed ceilings.
Bathroom:

A bathroom consisting of a walk in shower cubicle, WC, chrome heated towel rail, and wash hand basin, obscured Upvc window to the rear and floor to ceiling tiles

Landing:
A brief hallway offers access to three bedrooms.

Bedroom 1:
A master double room with a radiator, uPVC windows to the front, quality flooring and power sockets
Bedroom 2:
A double bedroom with a uPVC window to the rear, radiator, power sockets and quality flooring.

Bedroom 3:
A generous single bedroom witha uPVC window to the front, radiator, power sockets and quality flooring.

Outside

A private garden that consists of a patio area, an area with artificial turf that currently has an inflatable hot tub situated on it, a good sized shed and stairs that lead on to the rest of the garden. Ample on street parking to the front of the property as well. Absent Freeholder

Lease info: 999 years from 25 March 1910

Disclaimer:

These particulars, whilst believed to be accurate are set out as a general guideline and do not constitute any part of an offer or contract. Intending Purchasers should not rely on them as statements of representation of fact but must satisfy themselves by inspection or otherwise as to their accuracy. Please note that we have not tested any apparatus, equipment, fixtures, fittings or services including gas central heating and so cannot verify they are in working order or fit for their purpose. Furthermore, Solicitors should confirm moveable items described in the sales particulars and, in fact, included in the sale since circumstances do change during the marketing or negotiations. Although we try to ensure accuracy, if measurements are used in this listing, they may be approximate. Therefore if intending Purchasers need accurate measurements to order carpeting or to ensure existing furniture will fit, they should take such measurements themselves. Photographs are reproduced general information and it must not be inferred that any item is included for sale with the property.

TENURE
To be confirmed by the Vendor’s Solicitors

POSSESSION
Vacant possession upon completion

VIEWING
Viewing strictly by appointment through YOPA

EPC Rating

current 60 / 81 potential

Opening Bid and Reserve Price

This Property is subject to an undisclosed Reserve Price which in general will not be 10% more than the Opening Bid. The Reserve Price and Opening Bid can be subject to change. The Online Auction terms and conditions apply.

Comments

This property is offered for sale via Online Auction which is a flexible and buyer friendly method of purchase. The purchaser will not be exchanging contracts on the fall of the virtual hammer, but will be given 56 working days in which to exchange and complete the transaction from the date the Draft Contract is issued by the sellers solicitor.

By giving a buyer time to exchange contracts on the property, normal residential finance can be arranged. The Buyer’s Premium secures the transaction and takes the property off the market. Fees paid to the Auctioneer reserve the property to the buyer during the Reservation Period and are paid in addition to the purchase price and are considered within calculations for Stamp Duty Land Tax. Further clarification on this must be sought from your legal representative.

The buyer will be required to give the Auctioneer authority to sign the Reservation Form on their behalf and to confirm acceptance of the Terms and Conditions prior to solicitors being instructed. Copies of the Reservation Form and all Terms and Conditions can be found in the Information Pack which can be downloaded from our website or requested from our Auctioneer.

Upon close of a successful auction, or if the vendor accepts an offer during the auction, the buyer will be required to make payment of a non-refundable Buyer's Premium of £6,600 including VAT, plus a buyer's administration charge of £372 including VAT, a total of £6,972. This secures the transaction and takes the property off the market. Any additional fees and charges over and above this will be confirmed within the terms and conditions available on the website.

The Buyer's Premium and buyer's administration charge are in addition to the final negotiated selling price.

All buyers will be required to verify their identity and provide proof of how the purchase will be funded.

Buyer's Administration Charge

If the Buyer Information Pack has been produced and provided by GOTO Group any successful purchaser will be required to pay £372 (including VAT) towards the cost of the preparation of the pack. These can then be used by your solicitor to progress the sale.

Buyer Fees

There are no other fees or charges payable to the Auctioneer however, there are other costs to consider such as:

  • You will need a Solicitor to act for you during the conveyancing and your Solicitor will advise you in relation to the associated costs. If you do not have a Solicitor, we can recommend the services of one of our Panel Solicitors who are all selected for their expertise in Auction Transactions. Please call the number below for more information.
  • Stamp Duty Land Tax (SDLT) is applicable if you buy a property or land over a certain price in England, Wales or Northern Ireland. Please click here for more information.

Energy Performance Certificate (EPCs)

An EPC is broadly like the labels provided with domestic appliances such as refrigerators and washing machines. Its purpose is to record how energy efficient a property is as a building. The certificate will provide a rating of the energy efficiency and carbon emissions of a building from A to G, where A is very efficient, and G is inefficient. The data required to allow the calculation of an EPC includes the age and construction of the building, its insulation and heating method. EPCs are produced using standard methods with standard assumptions about energy usage so that the energy efficiency of one building can easily be compared with another building of the same type. The Energy Performance of Buildings Directive (EPBD) requires that all buildings have an EPC when they are marketed for sale or for let, or when houses are newly built. EPCs are valid for 10 years, or until a newer EPC is prepared. During this period the EPC may be made available to buyers or new tenants.

Loading the bidding panel...

Office Contact

YOPA Online Auctions
01844 355022

Agreement Documents

Additional Documents

Online Auction Buying Guide

Related Documents

Share