64 Station Road Thurnby, Leicester, Leicestershire, LE7 9PU

  • Conditional Online Auction Sale
  • Bedrooms: 3

THE GOTO GROUP PRESENTS THIS THREE BEDROOM BUNGALOW IN LEICESTER - LE7

Tenure

FREEHOLD

Description

CASH BUYERS ONLY:

History & Construction

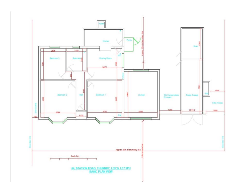
Originally built circa 1929 as a single-storey bungalow, the property featured four principal rooms and a bathroom. The construction is of solid 9-inch external brick walls, with 4½-inch internal walls, all internally plastered and externally rendered.

The roof is a tiled structure supported by timber beams and laths, designed without internal joists or felt. It remains open to the loft, which is well-insulated and accessible via a pull-down ladder in the hallway. Most ceilings are lathe and plaster, with the exception of the dining room, which uses plasterboard. Ceiling heights are above average at approximately 2.58m.

Floors are primarily constructed of timber planks nailed to timber joists, allowing crawl-space access underneath. The hallway is the exception, featuring a solid tiled floor beneath the carpet. All other areas are carpeted, apart from the kitchen which has a tiled floor.

The windows remain the original timber-framed single-glazed units.

Extensions

In the 1950s, the property was significantly extended—doubling the plot width and adding a lounge, kitchen, and detached garage. The lounge extension mirrors the original 9-inch brick construction, while the kitchen is a lean-to style built with 4½-inch brick walls and a lower-level solid tiled floor. A small external pantry is attached to the kitchen.

Services & Utilities

Gas: Installed circa 1965, initially supplied as town gas and later converted to natural gas. The gas meter is in the garage, with galvanised external pipework running to the lounge, then internally to the kitchen and second bedroom (which contains a disused gas fire). Current supplier: British Gas.

Heating: The original heating boiler (installed c1965 and converted to natural gas) is currently not in use and partially drained. A matching gas cooker/oven (also unused) remains in place.

Hot Water: Provided via a gravity-fed system from the boiler to a hot water cylinder located in the bathroom, with a basic thermostat. An immersion heater is also installed for summer use.

Distribution: Hot water is piped to the kitchen, bathroom/shower, and both main bedrooms (which include wash hand basins).

Heating System: A two-pipe steel radiator system (with TRVs added later) runs beneath the floors. The heating pump is located under the dining room floor, with a feed and expansion tank in the loft. The system is currently non-operational.

Electricity: Supplied via an E7 meter (located in Bedroom 1) with a RDS teleswitch. The last electrical upgrade was around 1965 and includes a semi-ring main with rewireable fuses. Lighting circuits lack earth wiring and run through outdated concealed conduit. The entire electrical system is due for full replacement and certification. Current supplier: E.ON.

Telecoms: Previously connected via overhead lines to a pole outside No. 62. Service is currently disconnected; there is no broadband installed.

Water: Supplied via a meter located at the front boundary. The incoming supply, believed to be lead, enters under the lounge and into the dining room. Water is distributed via internal copper piping to the kitchen, bathroom, outside tap, loft tanks, and the wash hand basins in the two main bedrooms. Current supplier: Severn Trent Water.

Drainage: Now connected to the mains combined drainage system (via STWA), with original private connections to an inspection cover in the rear garden. Rainwater is managed via soakaways, reflected in reduced water charges.

Asbestos Consideration

Asbestos testing was carried out in 2011 for walls and ceilings, with no asbestos detected. However, given the age of the floor tiles (early 1960s), further testing for asbestos-containing materials (ACM) is recommended. The boiler flue is cement-based asbestos, and the gas fire has a GCL asbestos flue terminal.

Legal & EPC

The property is currently not registered with the Land Registry (documentation is paper-based).

No Energy Performance Certificate (EPC) is available.

Plot & External Features

The site occupies a generous plot of approximately 1/3 acre. The frontage measures approximately 20m, tapering to 17m at the rear boundary, with a total depth of around 80m. This includes:

A 20m deep driveway

The bungalow structure (approx. 5m deep)

Extensive mature lawned rear gardens with established trees

Room Dimensions

Bedroom 1: 3.98m x 3.37m x 2.57m (plus bay)

Bedroom 2: 3.99m x 3.69m x 2.525m

Bedroom 3: 3.36m x 2.69m x 2.59m

Bathroom: 2.40m x 2.106m x 2.583m

Hallway: 4.141m x 1.135m x 2.583m

Dining Room: 3.75m x 3.67m x 2.575m

Lounge: 4.960m x 3.6m x 2.578m

Kitchen: 4.175m x 1.83m x 2.216m

Old Conservatory: 4.36m x 2.29m

Garage: 5.822m x 2.244m

Shed: 3.24m x 2.12m

Summary & Development Potential

While the property requires comprehensive refurbishment and modernisation, it sits on a substantial plot within a sought-after residential location. Similar properties in the area have undergone significant redevelopment, and this site—featuring a double-width frontage—offers excellent potential for transformation into a high-value family residence with on-site parking and garage facilities

Material information:
The information above has been provided by the vendor, agent and GOTO Group and may not be accurate. Please refer to the property’s Legal Pack. (You can download this once you have registered your interest against the property). This pack provides material information which will help you make an informed decision before proceeding. It may not yet include everything you need to know so please make sure you do your own due diligence as well.

Opening Bid and Reserve Price

This Property is subject to an undisclosed Reserve Price which in general will not be 10% more than the Opening Bid. The Reserve Price and Opening Bid can be subject to change. The Online Auction terms and conditions apply.

Comments

This property is offered for sale via Online Auction which is a flexible and buyer friendly method of purchase. The purchaser will not be exchanging contracts on the fall of the virtual hammer, but will be given 56 working days in which to exchange and complete the transaction from the date the Draft Contract is issued by the sellers solicitor.

By giving a buyer time to exchange contracts on the property, normal residential finance can be arranged. The Buyer’s Premium secures the transaction and takes the property off the market. Fees paid to the Auctioneer reserve the property to the buyer during the Reservation Period and are paid in addition to the purchase price and are considered within calculations for Stamp Duty Land Tax. Further clarification on this must be sought from your legal representative.

The buyer will be required to give the Auctioneer authority to sign the Reservation Form on their behalf and to confirm acceptance of the Terms and Conditions prior to solicitors being instructed. Copies of the Reservation Form and all Terms and Conditions can be found in the Information Pack which can be downloaded from our website or requested from our Auctioneer.

Upon close of a successful auction, or if the vendor accepts an offer during the auction, the buyer will be required to make payment of a non-refundable Buyer's Premium of £6,600 including VAT, plus a buyer's administration charge of £396 including VAT, a total of £6,996. This secures the transaction and takes the property off the market. Any additional fees and charges over and above this will be confirmed within the terms and conditions available on the website.

The Buyer's Premium and buyer's administration charge are in addition to the final negotiated selling price.

All buyers will be required to verify their identity and provide proof of how the purchase will be funded.

Buyer's Administration Charge

If the Buyer Information Pack has been produced and provided by GOTO Group any successful purchaser will be required to pay £396 (including VAT) towards the cost of the preparation of the pack. These can then be used by your solicitor to progress the sale.

Buyer Fees

There are no other fees or charges payable to the Auctioneer however, there are other costs to consider such as:

  • You will need a Solicitor to act for you during the conveyancing and your Solicitor will advise you in relation to the associated costs. If you do not have a Solicitor, we can recommend the services of one of our Panel Solicitors who are all selected for their expertise in Auction Transactions. Please call the number below for more information.
  • Stamp Duty Land Tax (SDLT) is applicable if you buy a property or land over a certain price in England, Wales or Northern Ireland. Please click here for more information.

Energy Performance Certificate (EPCs)

An EPC is broadly like the labels provided with domestic appliances such as refrigerators and washing machines. Its purpose is to record how energy efficient a property is as a building. The certificate will provide a rating of the energy efficiency and carbon emissions of a building from A to G, where A is very efficient, and G is inefficient. The data required to allow the calculation of an EPC includes the age and construction of the building, its insulation and heating method. EPCs are produced using standard methods with standard assumptions about energy usage so that the energy efficiency of one building can easily be compared with another building of the same type. The Energy Performance of Buildings Directive (EPBD) requires that all buildings have an EPC when they are marketed for sale or for let, or when houses are newly built. EPCs are valid for 10 years, or until a newer EPC is prepared. During this period the EPC may be made available to buyers or new tenants.

Loading the bidding panel...

Office Contact

YOPA Online Auctions
01844 355022

Agreement Documents

Additional Documents

Online Auction Buying Guide

Related Documents

Share