116 Pigott Street, London, E14 7DW

  • Conditional Online Auction Sale
  • Bedrooms: 3

GOTO PRESENTS THIS 3 BEDROOM MAISONETTE IN LONDON - E14

Tenure

LEASEHOLD

Description

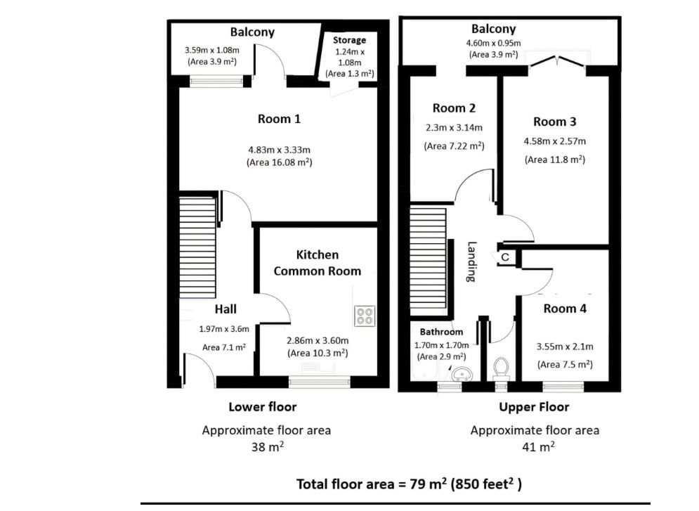
Yopa is proud to market this well-laid-out three-bedroom maisonette offers 79 m² (850 ft²) of internal space across two floors, combining practical living with a touch of comfort and outdoor access—perfect for families, professionals, or sharers.

Lease Info: 125 years from 11 January 1988 (87 years of unexpired lease remaining)

The lower level features a welcoming entrance hall leading into a spacious kitchen and communal area, ideal for cooking and socialising. A bright and generously sized living room opens directly onto a private balcony, offering a great spot for fresh air or morning coffee. There’s also an external storage unit for added practicality.

Upstairs, three well-proportioned bedrooms provide flexible options for restful retreats, home offices, or study spaces. The main bedroom enjoys access to a private balcony, adding an extra element of light and outdoor connection. A modern bathroom and additional hallway storage complete the upper level.

Set in a vibrant pocket of East London, the property benefits from close proximity to an excellent mix of local amenities. Within walking distance, you'll find popular spots like Chrisp Street Market, offering fresh produce, street food, and independent retailers. The area is also home to a variety of cafes, pubs, and restaurants—ranging from cosy brunch spots to lively bars and global cuisine.

For a bit of greenery, Langdon Park is nearby, perfect for outdoor exercise or relaxed weekends. You’re also a short stroll from Bartlett Park, a growing green space by the Limehouse Cut canal.

Transport links are outstanding. The home is just a few minutes’ walk from Langdon Park DLR station, connecting you directly to Canary Wharf, Bank, and Stratford. Nearby All Saints and Poplar DLR stations offer additional access, making daily commuting and weekend exploring effortless. Plus, Canary Wharf’s Jubilee Line and the Elizabeth Line (Crossrail) are just one stop away, opening up rapid links across London and beyond.

Whether you're looking for quick city access, a growing neighbourhood full of character, or a comfortable home with outdoor space, this property ticks all the boxes.

Property is currently vacant and it has been professionally cleaned and painted.

There is HMO licence for 5 people available on this property which can be transferred to new investors. £3,000 per month gross rental income

**MATERIAL INFORMATION**
The information above has been provided by the vendor, agent and GOTO Group and may not be accurate. Please refer to the property’s Legal Pack. (You can download this once you have registered your interest against the property). This pack provides material information which will help you make an informed decision before proceeding. It may not yet include everything you need to know so please make sure you do your own due diligence as well.

EPC Rating

CURRENT 70/77 POTENTIAL

Lease Start Date

11/01/1988

Lease Duration

125 years (87 years unexpired)

Opening Bid and Reserve Price

This Property is subject to an undisclosed Reserve Price which in general will not be 10% more than the Opening Bid. The Reserve Price and Opening Bid can be subject to change. The Online Auction terms and conditions apply.

Comments

This property is offered for sale via Online Auction which is a flexible and buyer friendly method of purchase. The purchaser will not be exchanging contracts on the fall of the virtual hammer, but will be given 56 working days in which to exchange and complete the transaction from the date the Draft Contract is issued by the sellers solicitor.

By giving a buyer time to exchange contracts on the property, normal residential finance can be arranged. The Buyer’s Premium secures the transaction and takes the property off the market. Fees paid to the Auctioneer reserve the property to the buyer during the Reservation Period and are paid in addition to the purchase price and are considered within calculations for Stamp Duty Land Tax. Further clarification on this must be sought from your legal representative.

The buyer will be required to give the Auctioneer authority to sign the Reservation Form on their behalf and to confirm acceptance of the Terms and Conditions prior to solicitors being instructed. Copies of the Reservation Form and all Terms and Conditions can be found in the Information Pack which can be downloaded from our website or requested from our Auctioneer.

Upon close of a successful auction, or if the vendor accepts an offer during the auction, the buyer will be required to make payment of a non-refundable Buyer's Premium of £9,000 including VAT, plus a buyer's administration charge of £396 including VAT, a total of £9,396. This secures the transaction and takes the property off the market. Any additional fees and charges over and above this will be confirmed within the terms and conditions available on the website.

The Buyer's Premium and buyer's administration charge are in addition to the final negotiated selling price.

All buyers will be required to verify their identity and provide proof of how the purchase will be funded.

Buyer's Administration Charge

If the Buyer Information Pack has been produced and provided by GOTO Group any successful purchaser will be required to pay £396 (including VAT) towards the cost of the preparation of the pack. These can then be used by your solicitor to progress the sale.

Buyer Fees

There are no other fees or charges payable to the Auctioneer however, there are other costs to consider such as:

  • You will need a Solicitor to act for you during the conveyancing and your Solicitor will advise you in relation to the associated costs. If you do not have a Solicitor, we can recommend the services of one of our Panel Solicitors who are all selected for their expertise in Auction Transactions. Please call the number below for more information.
  • Stamp Duty Land Tax (SDLT) is applicable if you buy a property or land over a certain price in England, Wales or Northern Ireland. Please click here for more information.

Energy Performance Certificate (EPCs)

An EPC is broadly like the labels provided with domestic appliances such as refrigerators and washing machines. Its purpose is to record how energy efficient a property is as a building. The certificate will provide a rating of the energy efficiency and carbon emissions of a building from A to G, where A is very efficient, and G is inefficient. The data required to allow the calculation of an EPC includes the age and construction of the building, its insulation and heating method. EPCs are produced using standard methods with standard assumptions about energy usage so that the energy efficiency of one building can easily be compared with another building of the same type. The Energy Performance of Buildings Directive (EPBD) requires that all buildings have an EPC when they are marketed for sale or for let, or when houses are newly built. EPCs are valid for 10 years, or until a newer EPC is prepared. During this period the EPC may be made available to buyers or new tenants.

Loading the bidding panel...

Office Contact

YOPA Online Auctions
01844 355022

Agreement Documents

Additional Documents

Online Auction Buying Guide

Related Documents

Share