31 Howard Road Handsworth, Birmingham, West Midlands, B20 2AN

  • Conditional Online Auction Sale
  • Bedrooms: 3

THE GOTO GROUP PRESENTS THREE BEDROOM DETACHED HOME IN BIRMINGHAM - B20

Tenure

FREEHOLD

Description

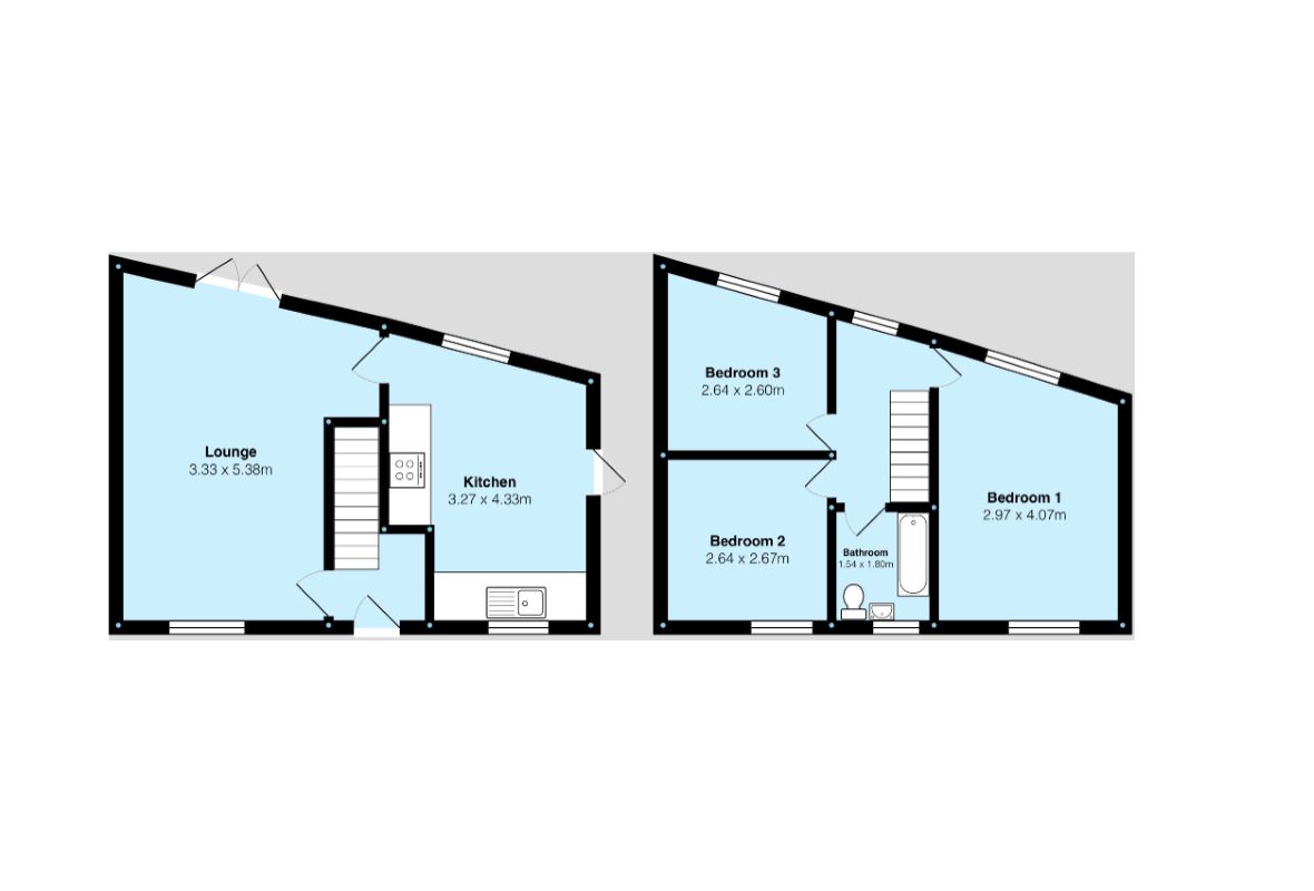
A Unique 3-Bedroom Detached Home on Howard Road, B20
Tenure: Freehold
Chain Free

Yopa are delighted to present this rare opportunity to acquire a three-bedroom detached home situated on Howard Road, B20. This is the only detached property within the block, offering privacy, space, and immense potential. Perfect for families, first-time buyers, or investors looking for a property with scope to modernise and add value.

Set on a generous 0.07-acre plot with a gated entrance, garage, and wraparound garden, this home offers a peaceful setting with excellent potential to extend (subject to planning permission).

Key Features
Detached property, the only one of its kind on this block
Chain free, offering a smooth and straightforward sale
Plot size: 0.07 acres with wraparound garden
Gated entrance with off-road parking and garage
Lounge with ample natural light, perfect for family living
Separate kitchen with space for a dining area
Three well-proportioned bedrooms
Family bathroom
EPC Rating: D
Council Tax Band: C (approx. £1,996 p.a.)
Year built: 1900–1929, retaining character and charm
Potential to extend to the side or rear, subject to planning permission
Outdoor Space & Potential
The property benefits from a wraparound garden, offering plenty of outdoor space for children, pets, or entertaining guests. There is scope to develop the side of the property for additional living space, making it ideal for investors or buyers seeking a project with potential to increase value.

Location & Amenities
Howard Road, B20, is a sought-after residential area with excellent connections to Birmingham City Centre and surrounding neighborhoods.

Transport Links: Easy access to the A34 and M6, with local bus routes and Perry Barr train station nearby.

Schools: Within catchment for several well-regarded primary and secondary schools.

Shopping & Leisure: Close to One Stop Shopping Centre, supermarkets, local shops, restaurants, and leisure facilities.

Green Spaces: Perry Hall Park and Handsworth Park are just a short distance away, perfect for outdoor activities and family days out.

Community: Friendly, well-established neighborhood with a mix of families and professionals.

Ideal For

Investors: With potential to modernise, extend, or develop for resale or rental income.

First-Time Buyers: A perfect project to personalise and make your own.

Families: Detached layout with garden and off-road parking offers space and privacy.

Viewings are highly recommended. Contact Yopa today to arrange a private appointment or request further details.

Material information:
The information above has been provided by the vendor, agent and GOTO Group and may not be accurate. Please refer to the property’s Legal Pack. (You can download this once you have registered your interest against the property). This pack provides material information which will help you make an informed decision before proceeding. It may not yet include everything you need to know so please make sure you do your own due diligence as well.

EPC Rating

Current 60 |Potential 84

Opening Bid and Reserve Price

This Property is subject to an undisclosed Reserve Price which in general will not be 10% more than the Opening Bid. The Reserve Price and Opening Bid can be subject to change. The Online Auction terms and conditions apply.

Comments

This property is offered for sale via Online Auction which is a flexible and buyer friendly method of purchase. The purchaser will not be exchanging contracts on the fall of the virtual hammer, but will be given 56 working days in which to exchange and complete the transaction from the date the Draft Contract is issued by the sellers solicitor.

By giving a buyer time to exchange contracts on the property, normal residential finance can be arranged. The Buyer’s Premium secures the transaction and takes the property off the market. Fees paid to the Auctioneer reserve the property to the buyer during the Reservation Period and are paid in addition to the purchase price and are considered within calculations for Stamp Duty Land Tax. Further clarification on this must be sought from your legal representative.

The buyer will be required to give the Auctioneer authority to sign the Reservation Form on their behalf and to confirm acceptance of the Terms and Conditions prior to solicitors being instructed. Copies of the Reservation Form and all Terms and Conditions can be found in the Information Pack which can be downloaded from our website or requested from our Auctioneer.

Upon close of a successful auction, or if the vendor accepts an offer during the auction, the buyer will be required to make payment of a non-refundable Buyer's Premium of £6,600 including VAT, plus a buyer's administration charge of £396 including VAT, a total of £6,996. This secures the transaction and takes the property off the market. Any additional fees and charges over and above this will be confirmed within the terms and conditions available on the website.

The Buyer's Premium and buyer's administration charge are in addition to the final negotiated selling price.

All buyers will be required to verify their identity and provide proof of how the purchase will be funded.

Buyer's Administration Charge

If the Buyer Information Pack has been produced and provided by GOTO Group any successful purchaser will be required to pay £396 (including VAT) towards the cost of the preparation of the pack. These can then be used by your solicitor to progress the sale.

Buyer Fees

There are no other fees or charges payable to the Auctioneer however, there are other costs to consider such as:

  • You will need a Solicitor to act for you during the conveyancing and your Solicitor will advise you in relation to the associated costs. If you do not have a Solicitor, we can recommend the services of one of our Panel Solicitors who are all selected for their expertise in Auction Transactions. Please call the number below for more information.
  • Stamp Duty Land Tax (SDLT) is applicable if you buy a property or land over a certain price in England, Wales or Northern Ireland. Please click here for more information.

Energy Performance Certificate (EPCs)

An EPC is broadly like the labels provided with domestic appliances such as refrigerators and washing machines. Its purpose is to record how energy efficient a property is as a building. The certificate will provide a rating of the energy efficiency and carbon emissions of a building from A to G, where A is very efficient, and G is inefficient. The data required to allow the calculation of an EPC includes the age and construction of the building, its insulation and heating method. EPCs are produced using standard methods with standard assumptions about energy usage so that the energy efficiency of one building can easily be compared with another building of the same type. The Energy Performance of Buildings Directive (EPBD) requires that all buildings have an EPC when they are marketed for sale or for let, or when houses are newly built. EPCs are valid for 10 years, or until a newer EPC is prepared. During this period the EPC may be made available to buyers or new tenants.

Loading the bidding panel...

Office Contact

YOPA Online Auctions
01844 355022

Agreement Documents

Legal Documents

Log in to view legal documents

Additional Documents

Online Auction Buying Guide

Related Documents

Share