FREEHOLD
Situated in a popular residential area within easy reach of town, schools, and local transport links this property is a must view to appreciate the size and space on offer. Perfect for a first-time buyer or small family looking for a property to move in and do very little.
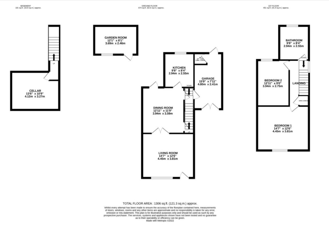
Entering the property through the front door into the living room you get an idea of the size of the rooms. The high ceilings and large windows make the rooms bright and spacious. The living room also has a window seat in the bay window and a gas fire. There are double oak doors leading to the dining room which leads through to the modern fitted kitchen complete with integrated appliances and underfloor heating. There is access to the private rear garden from the dining room. The garden is a low-maintenance space that also has a garden room at the end with power to it perfect space for homeworking if needed. The garage/utility room has a downstairs WC and can be accessed from the garden, the front of the property, and from the dining room.
Upstairs are 2 fantastic double bedrooms with lots of space for beds and furniture. The bathroom is a large space with a walk in double shower, as well as a bath, toilet, and vanity unit with separate tall storage and underfloor heating.
The cellar with heating, lighting, and internet provides an extra space for a variety of uses.
Bedroom Two
12' 9" x 9' 3" (3.88m x 2.81m)
Bedroom One
12' 10" x 12' 8" (3.91m x 3.87m)
Family Bathroom
9'8" x 8'4" (2.94m x 2.55m)
Gargage
15'9" x 7'11" (4.80m x 2.41m)
Entrance Lobby
Front entrance door leading into the Lobby with further internal door leading into the Lounge.
Lounge
15' 3" x 14' 10" (4.66m x 4.53m)
Dining Room
11' 9" x 9' 10" (3.57m x 3.00m)
Kitchen
9' 10" x 8' 4" (3.00m x 2.53m)
This property is offered for sale using the Committed Buyer process. When an offer is accepted, the buyer will be required to pay a non-refundable Buyer’s Premium of £2400 inc VAT + an admin fee of £354 (in addition to the final negotiated selling price), sign the Reservation Form and agree the Terms and Conditions prior to solicitors being instructed. If you require a copy of these documents, or for further information, please contact the committed buyer team at GOTO Group. This will secure the transaction and the property will be taken off the market.
CURRENT 25/84 POTENTIAL
This property is offered for sale via the Reservation Fee Service which is a flexible and buyer friendly method of purchase. The purchaser will be given 90 working days in which to complete the transaction from the date the Draft Contract is issued by the sellers solicitor.
By giving a buyer time to exchange contracts on the property, normal residential finance can be arranged. The Buyer’s Premium secures the transaction and takes the property off the market. Fees paid to the Merchant are paid in addition to the purchase price and are considered within calculations for Stamp Duty Land Tax. Further clarification on this must be sought from your legal representative.
The buyer will be required to give the Merchant authority to sign the Reservation Form on their behalf and to confirm acceptance of the Terms and Conditions prior to solicitors being instructed. Copies of the Reservation Form and all Terms and Conditions can be found in the Information Pack which can be downloaded from our website or requested from our Merchant.
If the vendor accepts an offer, the buyer will be required to make payment of a non-refundable Buyer’s Premium of £2,382 including VAT, plus a legal pack charge of £372 including VAT, a total of £2,754. This secures the transaction and takes the property off the market. Any additional fees and charges over and above this will be confirmed within the terms and conditions available on the website.
The Buyer's Premium and legal pack charge are in addition to the final negotiated selling price.
All buyers will be required to verify their identity and provide proof of how the purchase will be funded.
An EPC is broadly like the labels provided with domestic appliances such as refrigerators and washing machines. Its purpose is to record how energy efficient a property is as a building. The certificate will provide a rating of the energy efficiency and carbon emissions of a building from A to G, where A is very efficient, and G is inefficient. The data required to allow the calculation of an EPC includes the age and construction of the building, its insulation and heating method. EPCs are produced using standard methods with standard assumptions about energy usage so that the energy efficiency of one building can easily be compared with another building of the same type. The Energy Performance of Buildings Directive (EPBD) requires that all buildings have an EPC when they are marketed for sale or for let, or when houses are newly built. EPCs are valid for 10 years, or until a newer EPC is prepared. During this period the EPC may be made available to buyers or new tenants.
By setting a proxy bid, the system will automatically bid on your behalf to maintain your position as the highest bidder, up to your proxy bid amount. If you are outbid, you will be notified via email so you can opt to increase your bid if you so choose.
If two of more users place identical bids, the bid that was placed first takes precedence, and this includes proxy bids.
Another bidder placed an automatic proxy bid greater or equal to the bid you have just placed. You will need to bid again to stand a chance of winning.