2 West End Ingoldsby, GRANTHAM, Lincolnshire, NG33 4EN

  • Conditional Online Auction Sale
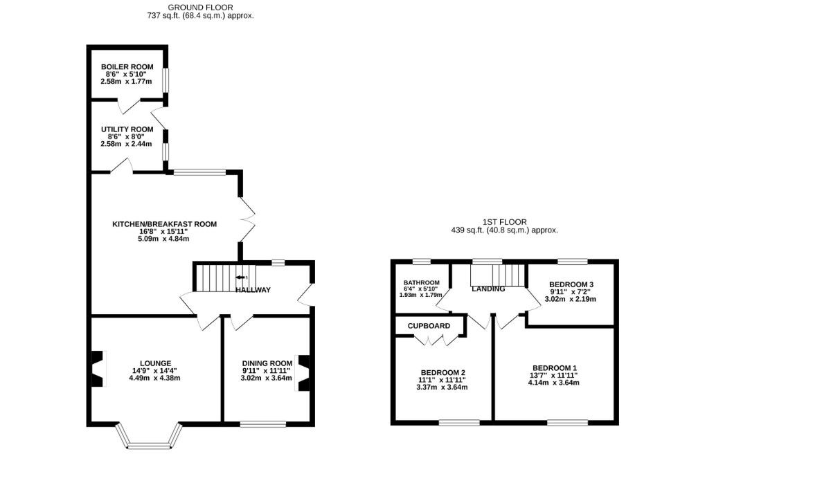
  • Bedrooms: 3

GOTO Group offer for sale this three bedroom semi detached property in Grantham.

Tenure

FREEHOLD

Description

A SEMI-DETACHED, THREE-BEDROOM, GOOD SIZE PROPERTY IN A QUIET VILLAGE LOCATION!!

Marketed with no upward chain and vacant possession, this three-bedroom semi-detached home sits on a good size plot, in the quiet village of Ingoldsby, opposite St Bartholomew's church. Ingoldsby is a small village with an excellent primary school and a lovely rural feel. In just a 20 minute drive you are in the centre of Grantham with fast train access to London King's Cross station, as well as all of Grantham's local amenities and good road access including the A1.

The property itself benefits from off-road parking to the front elevation, with a fence and gate leading past the side of the house to the rear patio and garden. Inside, the front door leads into an entrance hallway that runs from right to left and provides access to the dining room, lounge and large breakfast kitchen. Both the dining room and lounge have windows to the front elevation with the lounge having a good size bay window. Both have lovely views of the church opposite. The large breakfast kitchen has a range of wall and base units, ample worktop space, doors leading out to the rear garden, and space/plumbing for utilities/appliances. You then go through to a generous size utility room which also has a shower enclosure, and leads on to the spacious boiler room which the previous owner doubled up as a small workshop.

Upstairs, there are three bedrooms and a bathroom. Bedrooms one and two are good size doubles and have windows to the front elevation facing the church. They both benefit from built-in wardrobes providing excellent storage. Bedroom three is a single and overlooks the rear garden. The bathroom comprises of bath with shower over, wash hand basin, and WC.

Outside, the rear garden has a large patio area, up several steps to a good size lawn area, and has huge potential.

EPC Rating

CURRENT 53/77 POTENTIAL

Opening Bid and Reserve Price

This Property is subject to an undisclosed Reserve Price which in general will not be 10% more than the Opening Bid. The Reserve Price and Opening Bid can be subject to change. The Online Auction terms and conditions apply.

Comments

This property is offered for sale via Online Auction which is a flexible and buyer friendly method of purchase. The purchaser will not be exchanging contracts on the fall of the virtual hammer, but will be given 56 working days in which to exchange and complete the transaction from the date the Draft Contract is issued by the sellers solicitor.

By giving a buyer time to exchange contracts on the property, normal residential finance can be arranged. The Buyer’s Premium secures the transaction and takes the property off the market. Fees paid to the Auctioneer reserve the property to the buyer during the Reservation Period and are paid in addition to the purchase price and are considered within calculations for Stamp Duty Land Tax. Further clarification on this must be sought from your legal representative.

The buyer will be required to give the Auctioneer authority to sign the Reservation Form on their behalf and to confirm acceptance of the Terms and Conditions prior to solicitors being instructed. Copies of the Reservation Form and all Terms and Conditions can be found in the Information Pack which can be downloaded from our website or requested from our Auctioneer.

Upon close of a successful auction, or if the vendor accepts an offer during the auction, the buyer will be required to make payment of a non-refundable Buyer's Premium of £6,582 including VAT, plus a buyer's administration charge of £372 including VAT, a total of £6,954. This secures the transaction and takes the property off the market. Any additional fees and charges over and above this will be confirmed within the terms and conditions available on the website.

The Buyer's Premium and buyer's administration charge are in addition to the final negotiated selling price.

All buyers will be required to verify their identity and provide proof of how the purchase will be funded.

Buyer's Administration Charge

If the Buyer Information Pack has been produced and provided by GOTO Group any successful purchaser will be required to pay £372 (including VAT) towards the cost of the preparation of the pack. These can then be used by your solicitor to progress the sale.

Buyer Fees

There are no other fees or charges payable to the Auctioneer however, there are other costs to consider such as:

  • You will need a Solicitor to act for you during the conveyancing and your Solicitor will advise you in relation to the associated costs. If you do not have a Solicitor, we can recommend the services of one of our Panel Solicitors who are all selected for their expertise in Auction Transactions. Please call the number below for more information.
  • Stamp Duty Land Tax (SDLT) is applicable if you buy a property or land over a certain price in England, Wales or Northern Ireland. Please click here for more information.

Energy Performance Certificate (EPCs)

An EPC is broadly like the labels provided with domestic appliances such as refrigerators and washing machines. Its purpose is to record how energy efficient a property is as a building. The certificate will provide a rating of the energy efficiency and carbon emissions of a building from A to G, where A is very efficient, and G is inefficient. The data required to allow the calculation of an EPC includes the age and construction of the building, its insulation and heating method. EPCs are produced using standard methods with standard assumptions about energy usage so that the energy efficiency of one building can easily be compared with another building of the same type. The Energy Performance of Buildings Directive (EPBD) requires that all buildings have an EPC when they are marketed for sale or for let, or when houses are newly built. EPCs are valid for 10 years, or until a newer EPC is prepared. During this period the EPC may be made available to buyers or new tenants.

Loading the bidding panel...

Office Contact

YOPA Online Auctions
01844 355022

Agreement Documents

Additional Documents

Online Auction Buying Guide

Related Documents

Share