freehold
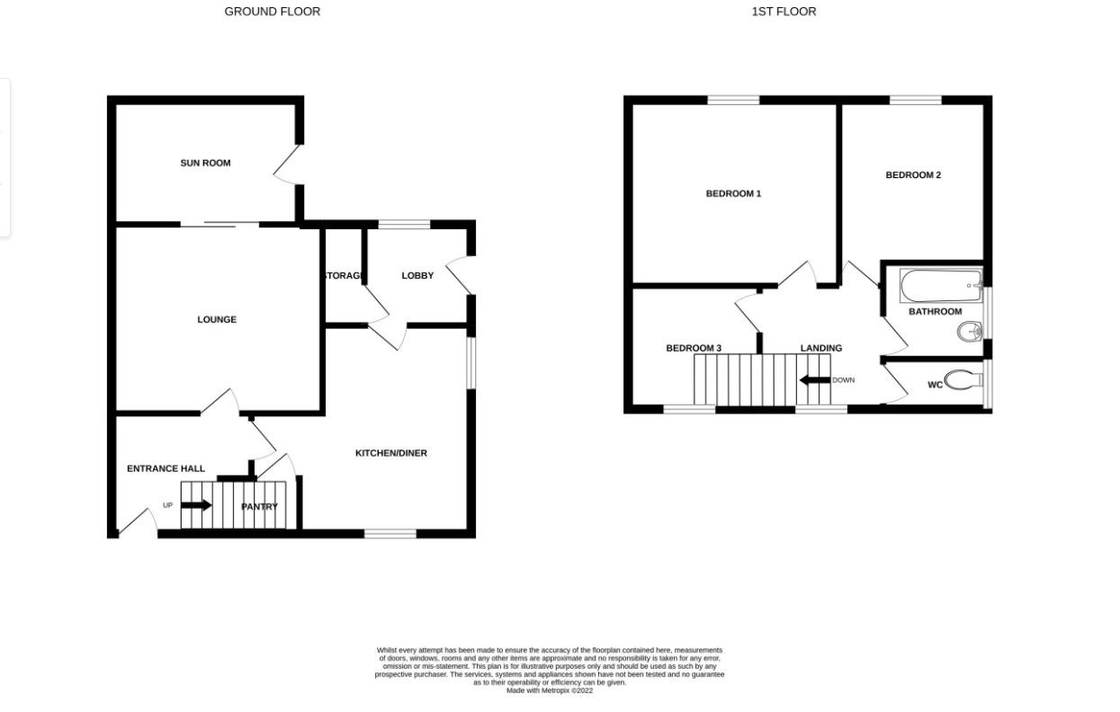
YOPA are delighted to welcome this three bedroom property in need of renovation in the sought after location of Alvaston. This home offers a generous plot size with easy access to Alvaston Town Centre and is in close proximity to Transport Routes. With a bit of TLC this would be a great family home! The living accommodation comprises of the following; Entrance Hall Door to front aspect with stairs leading to the First Floor, door leading to the Lounge and access to the Kitchen. Lounge Sliding doors leading to the Sun Room, carpeted flooring with gas fire place, multiple electric points and TV point. Kitchen Fitted Kitchen with a range of wall and base units with work surfaces over, inset sink and drainer unit and plumbing for washing machine and space for a fridge freezer with window to front aspect and door to rear aspect leading to Utility Area. Utility Area Door leading out to the rear garden with plumbing for a washing machine and access to Pantry. Sun Room Wood construction in need of upgrades with a door leading to the Rear Garden. First Floor Landing Window to front aspect, electric storage heater and access to internal rooms, there is also a loft hatch with drop down ladder would make a fantastic loft conversion. Bedroom One Window to rear aspect with carpeted flooring, fitted wardrobes and electric points. Bedroom Two Window to rear aspect with carpeted flooring and electric points. Bedroom Three Window to front aspect with carpeted flooring and electric point with built in storage. Bathroom Bath with mixer taps and electric shower over with a wash hand basin and tiled splashback and window to side aspect. WC Low level WC with window to side aspect. External To rear the property offers a patio area with lawned garden and enclosed fencing with access to the Garage and to front the property offers a driveway and lawned garden with enclosed walls.
current 54/86 potential
This property is offered for sale via the Reservation Fee Service which is a flexible and buyer friendly method of purchase. The purchaser will be given 90 working days in which to complete the transaction from the date the Draft Contract is issued by the sellers solicitor.
By giving a buyer time to exchange contracts on the property, normal residential finance can be arranged. The Buyer’s Premium secures the transaction and takes the property off the market. Fees paid to the Merchant are paid in addition to the purchase price and are considered within calculations for Stamp Duty Land Tax. Further clarification on this must be sought from your legal representative.
The buyer will be required to give the Merchant authority to sign the Reservation Form on their behalf and to confirm acceptance of the Terms and Conditions prior to solicitors being instructed. Copies of the Reservation Form and all Terms and Conditions can be found in the Information Pack which can be downloaded from our website or requested from our Merchant.
If the vendor accepts an offer, the buyer will be required to make payment of a non-refundable Buyer’s Premium of £6,582 including VAT, plus a legal pack charge of £372 including VAT, a total of £6,954. This secures the transaction and takes the property off the market. Any additional fees and charges over and above this will be confirmed within the terms and conditions available on the website.
The Buyer's Premium and legal pack charge are in addition to the final negotiated selling price.
All buyers will be required to verify their identity and provide proof of how the purchase will be funded.
An EPC is broadly like the labels provided with domestic appliances such as refrigerators and washing machines. Its purpose is to record how energy efficient a property is as a building. The certificate will provide a rating of the energy efficiency and carbon emissions of a building from A to G, where A is very efficient, and G is inefficient. The data required to allow the calculation of an EPC includes the age and construction of the building, its insulation and heating method. EPCs are produced using standard methods with standard assumptions about energy usage so that the energy efficiency of one building can easily be compared with another building of the same type. The Energy Performance of Buildings Directive (EPBD) requires that all buildings have an EPC when they are marketed for sale or for let, or when houses are newly built. EPCs are valid for 10 years, or until a newer EPC is prepared. During this period the EPC may be made available to buyers or new tenants.
By setting a proxy bid, the system will automatically bid on your behalf to maintain your position as the highest bidder, up to your proxy bid amount. If you are outbid, you will be notified via email so you can opt to increase your bid if you so choose.
If two of more users place identical bids, the bid that was placed first takes precedence, and this includes proxy bids.
Another bidder placed an automatic proxy bid greater or equal to the bid you have just placed. You will need to bid again to stand a chance of winning.