518 Bath Road, West Drayton, Middlesex, UB7 0ED

  • Conditional Online Auction Sale
  • Bedrooms: 5

ONLINE AUCTION WITH THE GOTO GROUP FOR THIS FOUR BEDROOM PROPERTY IN MIDDLESEX - UB7

Tenure

FREEHOLD

Description

Being Sold by YOPA Online Auction Starting Bids from £450,000 Buy it now option available

Please call or visit YOPA Online Auctions for more information.

YOPA Online Auctions is a new, innovative and pioneering platform for buying and selling property. Open to both cash and mortgage buyers. It provides all the benefits synonymous with traditional auctions, including: speed and certainty of sale, transparency and zero risk of gazumping or double-selling but with the added advantage of being able to bid pressure-free from the comfort of your own home or office via desktop, tablet or mobile phone. YOPA also offer a Buy-it-Now feature which allows you to place an offer and purchase before the Auction end date.

If you request a viewing of this property or make an offer, then you agree that your personal information (name and contact details) will be shared with GOTO Auctions (YOPA’s Online Auction partner) to enable them to ensure that you understand the auction process.

To book a viewing visit YOPA.

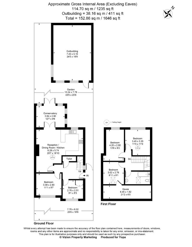
Welcome to this spacious and versatile property, perfect for auction buyers looking for a unique opportunity. The ground floor offers a well-designed layout starting with an inviting entrance that leads into the open-plan reception, dining room, and kitchen area. This expansive space is ideal for family gatherings and entertaining, featuring modern amenities and seamless access to the conservatory, which provides additional living space and views of the garden.

The ground floor also includes one bedroom and one office/study, offering flexibility for use as guest rooms, home offices, or additional living spaces. A convenient toilet is located near the entrance for easy access.

Upstairs, the first floor boasts three well-proportioned bedrooms, each providing comfortable accommodation. The family bathroom is equipped with modern fixtures and fittings, ensuring a luxurious feel.

Externally, the property features a generously sized garden, perfect for outdoor activities and relaxation. An impressive outbuilding adds further potential, ideal for use as a workshop, studio, or additional storage.

Additional features include a double garage with rear access, accessible via a paved path, offering ample parking and storage solutions. The front garden is attractively bordered with brick walls and an iron gate, leading to a welcoming paved path surrounded by flower borders. The property will also have all external windows and doors replaced with a Optiphon Glass and UPVS frame, there will also be two roof lights replaced.

This property, with its tranquil surroundings and potential for further extensions and customization, presents a rare opportunity for those looking to create their dream home. Don’t miss out on this exceptional property – it’s a must-see!

This property is for sale by Online Auction which is a flexible and buyer friendly method of purchase. The purchaser will not be exchanging contracts on the fall of the virtual hammer but will be given 56 working days in which to complete the transaction, from the date the Draft Contract are issued by the seller’s solicitor. By giving a buyer time to exchange contracts on the property, means normal residential finance can be sort.

The Buyer’s Premium secures the transaction and takes the property off the market. Fees paid to the Auctioneer may be considered as part of the chargeable consideration for the property and be included in the calculation for stamp duty liability. Further clarification on

this must be sought from your legal representative. The buyer will be required to sign a Reservation form to confirm acceptance of terms prior to solicitors being instructed. Copies of the Reservation form and all terms and conditions can be found in the Info Pack which can be downloaded for free from our website or requested from our Auction Department.

Upon close of a successful auction or if the vendor accepts an offer during the auction, the buyer will be required to make payment of a non-refundable Buyers Premium of £9,000 including VAT plus an administration charge of £372 including VAT, a total of £9,372. This secures the transaction and takes the property off the market.

The Buyer’s Premium and administration charge are in addition to the final negotiated selling price.

Disclaimer

Whilst we make enquiries with the Seller to ensure the information provided is accurate, Yopa makes no representations or warranties of any kind with respect to the statements contained in the particulars which should not be relied upon as representations of fact. All representations contained in the particulars are based on details supplied by the Seller. Your Conveyancer is legally responsible for ensuring any purchase agreement fully protects your position. Please inform us if you become aware of any information being inaccurate.

Money Laundering Regulations

Should a purchaser(s) have an offer accepted on a property marketed by Yopa, they will need to undertake an identification check and asked to provide information on the source and proof of funds. This is done to meet our obligation under Anti Money Laundering Regulations (AML) and is a legal requirement. We use a specialist third party service together with an in-house compliance team to verify your information. The cost of these checks is £70 +VAT per purchase, which is paid in advance, when an offer is agreed and prior to a sales memorandum being issued. This charge is non-refundable under any circumstances.

Material information:
The information above has been provided by the vendor, agent and GOTO Group and may not be accurate. Please refer to the property’s Legal Pack. (You can download this once you have registered your interest against the property). This pack provides material information which will help you make an informed decision before proceeding. It may not yet include everything you need to know so please make sure you do your own due diligence as well.

EPC Rating

current 75 / 88 potential

Opening Bid and Reserve Price

This Property is subject to an undisclosed Reserve Price which in general will not be 10% more than the Opening Bid. The Reserve Price and Opening Bid can be subject to change. The Online Auction terms and conditions apply.

Comments

This property is offered for sale via Online Auction which is a flexible and buyer friendly method of purchase. The purchaser will not be exchanging contracts on the fall of the virtual hammer, but will be given 56 working days in which to exchange and complete the transaction from the date the Draft Contract is issued by the sellers solicitor.

By giving a buyer time to exchange contracts on the property, normal residential finance can be arranged. The Buyer’s Premium secures the transaction and takes the property off the market. Fees paid to the Auctioneer reserve the property to the buyer during the Reservation Period and are paid in addition to the purchase price and are considered within calculations for Stamp Duty Land Tax. Further clarification on this must be sought from your legal representative.

The buyer will be required to give the Auctioneer authority to sign the Reservation Form on their behalf and to confirm acceptance of the Terms and Conditions prior to solicitors being instructed. Copies of the Reservation Form and all Terms and Conditions can be found in the Information Pack which can be downloaded from our website or requested from our Auctioneer.

Upon close of a successful auction, or if the vendor accepts an offer during the auction, the buyer will be required to make payment of a non-refundable Buyer's Premium of £9,000 including VAT, plus a buyer's administration charge of £372 including VAT, a total of £9,372. This secures the transaction and takes the property off the market. Any additional fees and charges over and above this will be confirmed within the terms and conditions available on the website.

The Buyer's Premium and buyer's administration charge are in addition to the final negotiated selling price.

All buyers will be required to verify their identity and provide proof of how the purchase will be funded.

Buyer's Administration Charge

If the Buyer Information Pack has been produced and provided by GOTO Group any successful purchaser will be required to pay £372 (including VAT) towards the cost of the preparation of the pack. These can then be used by your solicitor to progress the sale.

Buyer Fees

There are no other fees or charges payable to the Auctioneer however, there are other costs to consider such as:

  • You will need a Solicitor to act for you during the conveyancing and your Solicitor will advise you in relation to the associated costs. If you do not have a Solicitor, we can recommend the services of one of our Panel Solicitors who are all selected for their expertise in Auction Transactions. Please call the number below for more information.
  • Stamp Duty Land Tax (SDLT) is applicable if you buy a property or land over a certain price in England, Wales or Northern Ireland. Please click here for more information.

Energy Performance Certificate (EPCs)

An EPC is broadly like the labels provided with domestic appliances such as refrigerators and washing machines. Its purpose is to record how energy efficient a property is as a building. The certificate will provide a rating of the energy efficiency and carbon emissions of a building from A to G, where A is very efficient, and G is inefficient. The data required to allow the calculation of an EPC includes the age and construction of the building, its insulation and heating method. EPCs are produced using standard methods with standard assumptions about energy usage so that the energy efficiency of one building can easily be compared with another building of the same type. The Energy Performance of Buildings Directive (EPBD) requires that all buildings have an EPC when they are marketed for sale or for let, or when houses are newly built. EPCs are valid for 10 years, or until a newer EPC is prepared. During this period the EPC may be made available to buyers or new tenants.

Loading the bidding panel...

Office Contact

YOPA Online Auctions
01844 355022

Agreement Documents

Additional Documents

Online Auction Buying Guide

Related Documents

Share