YOPA are delighted to bring to the market this spacious three bedroom semi detached home in the sought after location of Measham. Benefitting from an open plan kitchen diner and a private rear garden, as well as offering ample off street parking, this family home must be viewed as soon as possible.
The living accommodation comprises of the following;
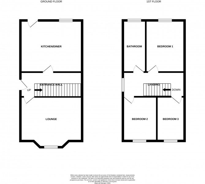
Entrance Hall
Double glazed UPVC door to side aspect with built in under stair storage and door leading to the Lounge, a door leading to the Kitchen/Diner and stairs leading to the first floor.
Lounge -
Double glazed UPVC window to front aspect with a wall mounted radiator, feature fire place and multiple electric points.
Kitchen/Diner
Fitted kitchen with a matching range of wall and base units with work surfaces over, tiled splashback with inset sink and drainer unit, plumbing for a washing machine and space for a fridge freezer with space for a dining table and chairs and double glazed UPVC window to side and rear aspect and a double glazed UPVC door to the rear garden.
Bedroom One
Double glazed UPVC window to rear aspect with a wall mounted radiator, carpeted flooring and electric points.
Bedroom Two
Double glazed UPVC window to front aspect with a wall mounted radiator.
Bedroom Three
Double glazed UPVC window to front aspect with a wall mounted radiator.
Bathroom
Panelled bath with mixer taps, low level WC and wash hand basin with double glazed UPVC window to rear aspect and a wall mounted radiator.
External
To rear, the property offers a patio area and a generously sized lawned garden with enclosed fencing and brick built outhouse and to front, the property benefits from ample off street parking.
EPC band: D
current 63/87 potential
This property is offered for sale via the Reservation Fee Service which is a flexible and buyer friendly method of purchase. The purchaser will be given 90 working days in which to complete the transaction from the date the Draft Contract is issued by the sellers solicitor.
By giving a buyer time to exchange contracts on the property, normal residential finance can be arranged. The Buyer’s Premium secures the transaction and takes the property off the market. Fees paid to the Merchant are paid in addition to the purchase price and are considered within calculations for Stamp Duty Land Tax. Further clarification on this must be sought from your legal representative.
The buyer will be required to give the Merchant authority to sign the Reservation Form on their behalf and to confirm acceptance of the Terms and Conditions prior to solicitors being instructed. Copies of the Reservation Form and all Terms and Conditions can be found in the Information Pack which can be downloaded from our website or requested from our Merchant.
If the vendor accepts an offer, the buyer will be required to make payment of a non-refundable Buyer’s Premium of £6,582 including VAT, plus a legal pack charge of £372 including VAT, a total of £6,954. This secures the transaction and takes the property off the market. Any additional fees and charges over and above this will be confirmed within the terms and conditions available on the website.
The Buyer's Premium and legal pack charge are in addition to the final negotiated selling price.
All buyers will be required to verify their identity and provide proof of how the purchase will be funded.
An EPC is broadly like the labels provided with domestic appliances such as refrigerators and washing machines. Its purpose is to record how energy efficient a property is as a building. The certificate will provide a rating of the energy efficiency and carbon emissions of a building from A to G, where A is very efficient, and G is inefficient. The data required to allow the calculation of an EPC includes the age and construction of the building, its insulation and heating method. EPCs are produced using standard methods with standard assumptions about energy usage so that the energy efficiency of one building can easily be compared with another building of the same type. The Energy Performance of Buildings Directive (EPBD) requires that all buildings have an EPC when they are marketed for sale or for let, or when houses are newly built. EPCs are valid for 10 years, or until a newer EPC is prepared. During this period the EPC may be made available to buyers or new tenants.
By setting a proxy bid, the system will automatically bid on your behalf to maintain your position as the highest bidder, up to your proxy bid amount. If you are outbid, you will be notified via email so you can opt to increase your bid if you so choose.
If two of more users place identical bids, the bid that was placed first takes precedence, and this includes proxy bids.
Another bidder placed an automatic proxy bid greater or equal to the bid you have just placed. You will need to bid again to stand a chance of winning.