2 Rossendale View, TODMORDEN, Lancashire, OL14 6HN

  • Conditional Online Auction Sale
  • Bedrooms: 5

GOTO OFFER FOR SALE THIS FIVE BEDROOM DETACHED PROPERTY IN TODMORDEN

Tenure

Freehold

Description

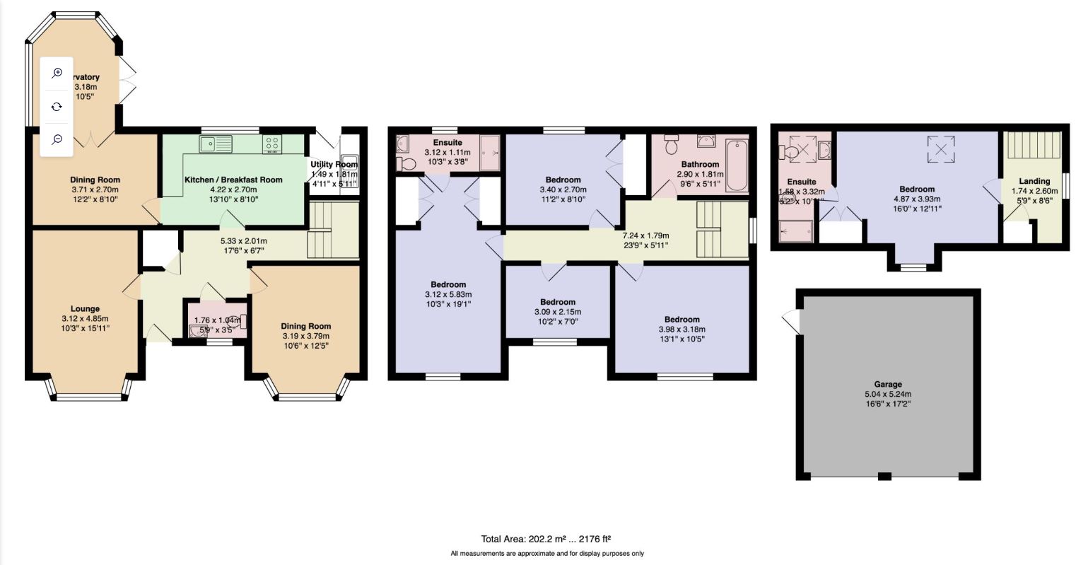
Beautifully presented five bedroom executive detached family home set over three spacious floors with double garage, ample off road parking and beautiful front, side and rear gardens positioned in a highly desirable quiet cul-de-sac located between Hebden Bridge and Todmorden close to popular schools, shops, local (gritted) bus route, school pickup point and offering excellent walks around the surrounding countryside taking in Stoodley Pike. Easy access to to the town centre with bus and train station providing excellent transport links. An internal viewing is essential to fully appreciate.

Entrance - Composite entrance door leading to the hallway with fitted storage cupboard and stairs to the first floor.

Cloakroom - Two piece suite in white comprising toilet and sink, tiled to complement, radiator and uPVC double glazed window.

Lounge- uPVC double glazed bay window to the front, radiator, television point, coved ceiling and living flame gas fire with decorative surround.

Dining Room/Study - uPVC double glazed patio doors to the rear leading to the conservatory, radiator and coved ceiling.

Dining Room - uPVC double glazed bay window to the front, radiator and coved ceiling.

Conservatory - uPVC double glazed windows and patio doors leading to the rear garden, tile effect flooring and radiator.

Kitchen - Fitted with a range of matching wall and base units with complementary work surfaces, sink with mixer tap, integral oven, hob and extraction hood, tiled to complement, space for appliances, uPVC double glazed window to the rear, integral dishwasher and wood flooring.

Utility Room - Fitted wall and base units with complementary work surfaces, sink with mixer tap, space for appliances and composite door leading to the rear garden.

First Floor - Feature picture window to the side, landing with staircase to the second floor.

Bedroom One - uPVC double glazed window, radiator and double walk through fitted wardrobes and access to the en-suite.

En-Suite -

Bedroom Two - uPVC double glazed window, radiator.

Bedroom Three - uPVC double glazed window, radiator.

Bedroom Four/Study - uPVC double glazed window, radiator.

Bathroom - Modern and stylish three piece suite in white comprising toilet, sink and bath with shower over and shower screen, tiled to complement, radiator and uPVC double glazed window.

Second Floor Master Suite - Staircase to the second floor, fitted cupboard/wardrobe and access to the master bedroom.

Master Bedroom - Beautiful spacious master suite with fitted wardrobes, uPVC double glazed window to the front, velux window and door to the en-suite.

En-Suite - Modern and stylish four piece suite in white comprising toilet, sink, bidet and step in shower cubicle, tiled to complement, radiator and Velux Window.

Outside - To the front is detached double garage with power/lighting and personal door leading from the garden. Ample off road parking via a block paved driveway, generous lawned garden with plant/shrub beds, pathway to the entrance with steps to the entrance door. To the rear/side is a lovely private enclosed garden which is not overlooked abutting open fields and countryside with paved patio area, extensive lawn with plant/tree beds, fenced to sides and side access gate.

EPC band: B

EPC Rating

Current 87 / 88 Potential

Opening Bid and Reserve Price

This Property is subject to an undisclosed Reserve Price which in general will not be 10% more than the Opening Bid. The Reserve Price and Opening Bid can be subject to change. The Online Auction terms and conditions apply.

Comments

This property is offered for sale via Online Auction which is a flexible and buyer friendly method of purchase. The purchaser will not be exchanging contracts on the fall of the virtual hammer, but will be given 56 working days in which to exchange and complete the transaction from the date the Draft Contract is issued by the sellers solicitor.

By giving a buyer time to exchange contracts on the property, normal residential finance can be arranged. The Buyer’s Premium secures the transaction and takes the property off the market. Fees paid to the Auctioneer reserve the property to the buyer during the Reservation Period and are paid in addition to the purchase price and are considered within calculations for Stamp Duty Land Tax. Further clarification on this must be sought from your legal representative.

The buyer will be required to give the Auctioneer authority to sign the Reservation Form on their behalf and to confirm acceptance of the Terms and Conditions prior to solicitors being instructed. Copies of the Reservation Form and all Terms and Conditions can be found in the Information Pack which can be downloaded from our website or requested from our Auctioneer.

Upon close of a successful auction, or if the vendor accepts an offer during the auction, the buyer will be required to make payment of a non-refundable Buyer's Premium of £6,582 including VAT, plus a buyer's administration charge of £372 including VAT, a total of £6,954. This secures the transaction and takes the property off the market. Any additional fees and charges over and above this will be confirmed within the terms and conditions available on the website.

The Buyer's Premium and buyer's administration charge are in addition to the final negotiated selling price.

All buyers will be required to verify their identity and provide proof of how the purchase will be funded.

Buyer's Administration Charge

If the Buyer Information Pack has been produced and provided by GOTO Group any successful purchaser will be required to pay £372 (including VAT) towards the cost of the preparation of the pack. These can then be used by your solicitor to progress the sale.

Buyer Fees

There are no other fees or charges payable to the Auctioneer however, there are other costs to consider such as:

  • You will need a Solicitor to act for you during the conveyancing and your Solicitor will advise you in relation to the associated costs. If you do not have a Solicitor, we can recommend the services of one of our Panel Solicitors who are all selected for their expertise in Auction Transactions. Please call the number below for more information.
  • Stamp Duty Land Tax (SDLT) is applicable if you buy a property or land over a certain price in England, Wales or Northern Ireland. Please click here for more information.

Energy Performance Certificate (EPCs)

An EPC is broadly like the labels provided with domestic appliances such as refrigerators and washing machines. Its purpose is to record how energy efficient a property is as a building. The certificate will provide a rating of the energy efficiency and carbon emissions of a building from A to G, where A is very efficient, and G is inefficient. The data required to allow the calculation of an EPC includes the age and construction of the building, its insulation and heating method. EPCs are produced using standard methods with standard assumptions about energy usage so that the energy efficiency of one building can easily be compared with another building of the same type. The Energy Performance of Buildings Directive (EPBD) requires that all buildings have an EPC when they are marketed for sale or for let, or when houses are newly built. EPCs are valid for 10 years, or until a newer EPC is prepared. During this period the EPC may be made available to buyers or new tenants.

Loading the bidding panel...

Office Contact

YOPA Online Auctions
01844 355022

Agreement Documents

Additional Documents

Online Auction Buying Guide

Related Documents

Share