2 Bro Hyfryd, MENAI BRIDGE, Gwynedd, LL59 5HT

  • Conditional Online Auction Sale
  • Bedrooms: 3

GOTO ARE PLEASED TO OFFER FOR SALE THIS TTHREE BEDROOM TERRACED PROPERTY IN MENAI BRIDGE

Tenure

Freehold

Description

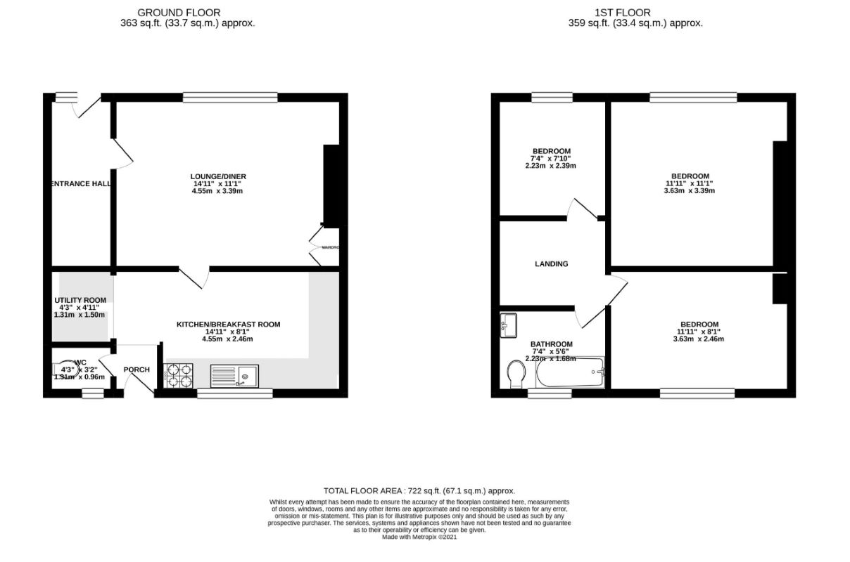
Situated in Menai Bride within and within easy walking distance of the town centre and local schools this property also benefits from off road parking and gardens to the front and rear. With the potential to add your own stamp to this well appointed property it truly has the potential to be a great family home. In brief the accommodation comprises, entrance hall, lounge, kitchen/dining room, storage room, downstairs WC, three bedrooms and bathroom. There are gardens to the front and rear of the property and also an off road parking space at the rear.

Entrance hall Double glazed frosted door to the front elevation giving access to front garden. Double glazed frosted window to the front elevation. Radiator.

Lounge
Double glazed window to the front elevation looking out towards Britannia Bridge. Fitted gas real flame fire with tiled surround. Radiator. Built in Cupboard storage.

Kitchen / Dining Room
Fitted with a range of wall and base units with complimentary worktops over. Space for free standing fridge freezer. Space for free standing gas cooker. Single drainer sink. Wall mounted combination boiler. Space for dining table. Space for washing machine. Two double glazed windows to the rear elevation.

WC
Fitted with a high level flush WC. Double glazed frosted window to the rear elevation.

Landing

Bathroom
Fitted with a three piece bathroom suite comprising, Low level flush WC, Bath with mixer taps and hand held shower and pedestal wash hand basin. Radiator. Double glazed frosted window to the rear elevation. Partially tiled walls.

Bedroom One
Double glazed window to the front elevation overlooking the rear garden. Radiator.

Bedroom Two
Double glazed window to the rear elevation overlooking the rear garden. Radiator.

Bedroom Three
Double glazed window to the front elevation overlooking the rear garden. Radiator.

Externally
To the front elevation is a garden with established plantings and some lawn. A path leads from the front door to a footway which gives access to a gate in a stone wall leading to the pavement and the road.

To the rear elevation is an area of off road parking behind this is a garden which is predominantly laid to lawn with a garden shed at the top. The rear garden is bordered to its neighbours by way of high established hedging to one side and a mid level wooden fence to the other.

The property has also been used previously as a successful Air BnB business, comfortably letting to small families with stunning views and central location to Snowdonia and scenic parts of Anglesey aswell as easy access to the A55 expressway

Opening Bid and Reserve Price

This Property is subject to an undisclosed Reserve Price which in general will not be 10% more than the Opening Bid. The Reserve Price and Opening Bid can be subject to change. The Online Auction terms and conditions apply.

Comments

This property is offered for sale via Online Auction which is a flexible and buyer friendly method of purchase. The purchaser will not be exchanging contracts on the fall of the virtual hammer, but will be given 56 working days in which to exchange and complete the transaction from the date the Draft Contract is issued by the sellers solicitor.

By giving a buyer time to exchange contracts on the property, normal residential finance can be arranged. The Buyer’s Premium secures the transaction and takes the property off the market. Fees paid to the Auctioneer reserve the property to the buyer during the Reservation Period and are paid in addition to the purchase price and are considered within calculations for Stamp Duty Land Tax. Further clarification on this must be sought from your legal representative.

The buyer will be required to give the Auctioneer authority to sign the Reservation Form on their behalf and to confirm acceptance of the Terms and Conditions prior to solicitors being instructed. Copies of the Reservation Form and all Terms and Conditions can be found in the Information Pack which can be downloaded from our website or requested from our Auctioneer.

Upon close of a successful auction, or if the vendor accepts an offer during the auction, the buyer will be required to make payment of a non-refundable Buyer's Premium of £6,582 including VAT, plus a buyer's administration charge of £372 including VAT, a total of £6,954. This secures the transaction and takes the property off the market. Any additional fees and charges over and above this will be confirmed within the terms and conditions available on the website.

The Buyer's Premium and buyer's administration charge are in addition to the final negotiated selling price.

All buyers will be required to verify their identity and provide proof of how the purchase will be funded.

Buyer's Administration Charge

If the Buyer Information Pack has been produced and provided by GOTO Group any successful purchaser will be required to pay £372 (including VAT) towards the cost of the preparation of the pack. These can then be used by your solicitor to progress the sale.

Buyer Fees

There are no other fees or charges payable to the Auctioneer however, there are other costs to consider such as:

  • You will need a Solicitor to act for you during the conveyancing and your Solicitor will advise you in relation to the associated costs. If you do not have a Solicitor, we can recommend the services of one of our Panel Solicitors who are all selected for their expertise in Auction Transactions. Please call the number below for more information.
  • Stamp Duty Land Tax (SDLT) is applicable if you buy a property or land over a certain price in England, Wales or Northern Ireland. Please click here for more information.

Energy Performance Certificate (EPCs)

An EPC is broadly like the labels provided with domestic appliances such as refrigerators and washing machines. Its purpose is to record how energy efficient a property is as a building. The certificate will provide a rating of the energy efficiency and carbon emissions of a building from A to G, where A is very efficient, and G is inefficient. The data required to allow the calculation of an EPC includes the age and construction of the building, its insulation and heating method. EPCs are produced using standard methods with standard assumptions about energy usage so that the energy efficiency of one building can easily be compared with another building of the same type. The Energy Performance of Buildings Directive (EPBD) requires that all buildings have an EPC when they are marketed for sale or for let, or when houses are newly built. EPCs are valid for 10 years, or until a newer EPC is prepared. During this period the EPC may be made available to buyers or new tenants.

Loading the bidding panel...

Office Contact

YOPA Online Auctions
01844 355022

Agreement Documents

Additional Documents

Online Auction Buying Guide

Related Documents

Share