17 Herne Bay Road, Sturry, Kent, CT2 0NJ

  • Conditional Online Auction Sale
  • Bedrooms: 2

GOTO Group offer for sale this two bedroom semi detached property in Sturry.

Tenure

Freehold

Description

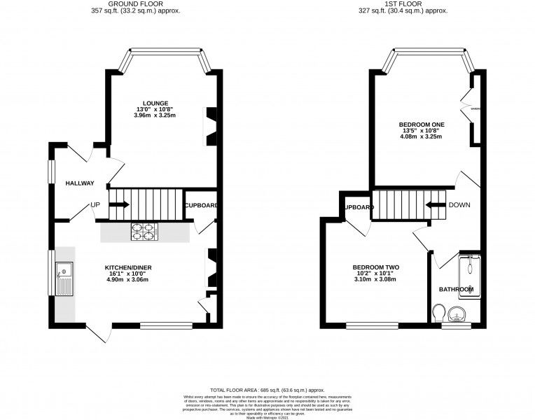
This fantastic semi-detached property comes to the market with the most convenient of Sturry locations and is wonderfully maintained and presented throughout by the current owners who have been here for the best part of 30 years. The accommodation downstairs provides a good sized bay fronted lounge complete with gas fire and a modern open plan kitchen-diner that provides plenty of additional cupboard space as well as access out to the conservatory and rear garden. Upstairs there are two double sized bedrooms which both benefit from integral wardrobe space and a modern fitted family bathroom complete with bath tub and attached shower. There is also a large partially boarded loft. Externally the property boasts a large family garden to the rear which has plenty of potential and has both a lawn and patio area to enjoy with family and friends.There is side access into the garage as well as side access to the driveway which itself provides enough off street parking for several vehicles.

The property is situated just a short walk from local amenities including the farm shop, local co-op supermarket as well Sturry train station which via Canterbury West provides a frequent high-speed service into London St Pancras in under an hour. There are frequent bus services just a stones throw from the property and the historic city centre of Canterbury is a short drive away. Sturry primary school is a short walk away and Canterbury itself provides plenty of well regarded secondary schools that are easily accessed from the property.

Offering a great living space in a popular and convenient location, this property really is a must-see.

Lounge - 3.24m x 4.15m

Kitchen/Diner - 3.18m x 4.77m

Conservatory - 3.58m x 2.59m

Bedroom One - 3.72m x 3.27m

Bedroom Two - 3.12m x 3.03m

EPC Rating

CURRENT 55/87 POTENTIAL

Opening Bid and Reserve Price

This Property is subject to an undisclosed Reserve Price which in general will not be 10% more than the Opening Bid. The Reserve Price and Opening Bid can be subject to change. The Online Auction terms and conditions apply.

Comments

This property is offered for sale via Online Auction which is a flexible and buyer friendly method of purchase. The purchaser will not be exchanging contracts on the fall of the virtual hammer, but will be given 56 working days in which to exchange and complete the transaction from the date the Draft Contract is issued by the sellers solicitor.

By giving a buyer time to exchange contracts on the property, normal residential finance can be arranged. The Buyer’s Premium secures the transaction and takes the property off the market. Fees paid to the Auctioneer reserve the property to the buyer during the Reservation Period and are paid in addition to the purchase price and are considered within calculations for Stamp Duty Land Tax. Further clarification on this must be sought from your legal representative.

The buyer will be required to give the Auctioneer authority to sign the Reservation Form on their behalf and to confirm acceptance of the Terms and Conditions prior to solicitors being instructed. Copies of the Reservation Form and all Terms and Conditions can be found in the Information Pack which can be downloaded from our website or requested from our Auctioneer.

Upon close of a successful auction, or if the vendor accepts an offer during the auction, the buyer will be required to make payment of a non-refundable Buyer's Premium of £6,582 including VAT, plus a buyer's administration charge of £372 including VAT, a total of £6,954. This secures the transaction and takes the property off the market. Any additional fees and charges over and above this will be confirmed within the terms and conditions available on the website.

The Buyer's Premium and buyer's administration charge are in addition to the final negotiated selling price.

All buyers will be required to verify their identity and provide proof of how the purchase will be funded.

Buyer's Administration Charge

If the Buyer Information Pack has been produced and provided by GOTO Group any successful purchaser will be required to pay £372 (including VAT) towards the cost of the preparation of the pack. These can then be used by your solicitor to progress the sale.

Buyer Fees

There are no other fees or charges payable to the Auctioneer however, there are other costs to consider such as:

  • You will need a Solicitor to act for you during the conveyancing and your Solicitor will advise you in relation to the associated costs. If you do not have a Solicitor, we can recommend the services of one of our Panel Solicitors who are all selected for their expertise in Auction Transactions. Please call the number below for more information.
  • Stamp Duty Land Tax (SDLT) is applicable if you buy a property or land over a certain price in England, Wales or Northern Ireland. Please click here for more information.

Energy Performance Certificate (EPCs)

An EPC is broadly like the labels provided with domestic appliances such as refrigerators and washing machines. Its purpose is to record how energy efficient a property is as a building. The certificate will provide a rating of the energy efficiency and carbon emissions of a building from A to G, where A is very efficient, and G is inefficient. The data required to allow the calculation of an EPC includes the age and construction of the building, its insulation and heating method. EPCs are produced using standard methods with standard assumptions about energy usage so that the energy efficiency of one building can easily be compared with another building of the same type. The Energy Performance of Buildings Directive (EPBD) requires that all buildings have an EPC when they are marketed for sale or for let, or when houses are newly built. EPCs are valid for 10 years, or until a newer EPC is prepared. During this period the EPC may be made available to buyers or new tenants.

Loading the bidding panel...

Office Contact

YOPA Online Auctions
01844 355022

Agreement Documents

Additional Documents

Online Auction Buying Guide

Related Documents

Share